Select 960mm Gunmetal Black Sink With Drainer
Select 960mm Gunmetal Black Sink With Drainer
Availability:In stock
Price Match & Beat
Australian Owned & Operated
Fast Shipping
Excellent Support
Product description
Material
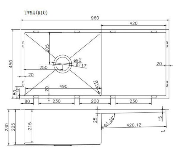
304 Stainless Steel
Technical Information
Installation: Top-Mount(Drop-In) and Under-Mount
Capacity: 47.2L
Strainer Waste: Included
Waste Size: 90mm
Thickenss: 1.2mm
Internal Radius: R10
Size and Dimensions
Overall Size: 960mm x 450m x 230mm
Bowl Size: 490mm x 410mm
Cut Out Size: 920 x 410mm (Reference Only)
Warranty
5 year warranty





